• 手机看片福利永久,手机在线看片,手机福利看片,手机看片午夜福利

    旋轉手机在线看片 1 2 3
    熱門關鍵詞: 手机福利看片係列、 冷卷法蘭係列、 橡膠接頭管係列
    聯係手机看片福利永久查看更多+

    地 址: 河南省鞏義市西村工業區

    聯係人: 龐經理

    手 機: 15617617287

               15038001853

    E_mail: gyltgd@126.com

    網 址: http://www.runshicc.com/

    http://www.gyltgdc.com/

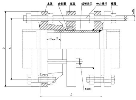
    傳力接頭係列

    VSSJAF型雙法蘭鬆套傳力接頭

    傳力接頭是泵、閥門,管道等設備與管道連接的新產品,通過全螺栓把它們連接起來,使其成為整體,並有一定的位移量,方便安裝。可承受管線的軸向壓力。這樣就可以在安裝維修時,根據現場安裝尺寸進行調整,在工作時,不僅提高工作效率,而且對泵、閥們等管道設備起到一定保護作用。

    全國24小時銷售熱線:15617617287

    傳力接頭是泵、閥門,管道等設備與管道連接的新產品,通過全螺栓把它們連接起來,使其成為整體,並有一定的位移量,方便安裝。可承受管線的軸向壓力。這樣就可以在安裝維修時,根據現場安裝尺寸進行調整,在工作時,不僅提高工作效率,而且對泵、閥們等管道設備起到一定保護作用。

    VSSJAF型雙法蘭鬆套傳力接頭適用範圍:
    VSSJAF型雙法蘭鬆套傳力接頭適用於輸送海水、淡水、冷熱水、飲用水、生活汙水、原油、燃油、潤滑油、成品油、空氣、煤氣、溫度不高於250度的蒸汽和顆粒粉狀等介質。
    VSSJAF型雙法蘭鬆套傳力接頭優點:
      1.安裝簡單方便、方便閥門安裝、可承受管線的軸向拉力。
      2.該產品采用金屬鑄造或焊接組成,鬆套部位選用梯形橡膠密封圈,在壓蓋和螺栓的作用下。
      3.利用橡膠壓縮彈性變形原理。迫使密封圈變形於接頭本體伸縮管外壁之間進行靜密封。
      4.金屬和密封圈嚴格按使用性能及用戶要求選用。材質外部塗裝高強度防腐漆料,各部連接螺栓為   高強度碳鋼或不鏽鋼製作。因為本體與伸縮管之間有一定間隙,使它具有一定的軸向和徑向位移。
      5.在管道中能有效的補償和緩解管道和盲板推力,又能便於水泵,閥門的安裝維修更換,實為管道安裝運行業中最為理想的配套產品。

    VSSJAF型雙法蘭鬆套傳力接頭安裝簡要說明:
    VSSJAF型雙法蘭鬆套傳力接頭適用於兩邊均與法蘭連接的管道中,安裝時調整產品兩端與法蘭的安裝長度,對角依次均勻擰緊壓螺栓,使其成為一個整體,並有一定的位移量,方便安裝維修時,根據現場尺寸進行調整在工作時,可以把軸向推力傳遞至整個管道。

    技術參數:

    公稱通徑
    管子外徑
    外形尺寸
    伸縮量
    法蘭連接尺寸
    Dw
    L
    L1
    0.6MPa
    1.0MPa
    D
    D1
    n-d。
    D
    D1
    n-d。
    65
    76
    340
    105
    50
    160
    130
    4-¢14
    185
    145
    4-¢18
    80
    89
    190
    150
    4-¢18
    200
    160
    8-¢18
    100
    108
    210
    170
    220
    180
    114
    125
    133
    240
    200
    8-¢18
    250
    210
    140
    150
    159
    265
    225
    285
    240
    8-¢22
    168
    200
    219
    320
    280
    340
    295
    250
    273
    370
    335
    12-¢18
    395
    350
    12-¢22
    300
    325
    350
    130
    65
    440
    395
    12-¢22
    445
    400
    350
    377
    490
    445
    505
    460
    16-¢22
    400
    426
    540
    495
    16-¢22
    565
    515
    16-¢26
    450
    480
    595
    550
    615
    565
    20-¢26
    500
    530
    645
    600
    20-¢22
    670
    620
    600
    630
    755
    705
    20-¢26
    780
    725
    20-¢30
    700
    720
    860
    810
    24-¢26
    895
    840
    24-¢30
    800
    820
    590
    220
    130
    975
    920
    24-¢30
    1015
    950
    24-¢33
    900
    920
    1075
    1020
    1115
    1015
    28-¢33
    1000
    1020
    1175
    1120
    28-¢30
    1230
    1160
    28-¢36
    1200
    1220
    1405
    1340
    32-¢33
    1455
    1380
    32-¢40
    1400
    1420
    1630
    1560
    36-¢36
    1675
    1590
    36-¢42
    1500
    1520
    1730
    1660
    -
    -
    -
    1600
    1620
    1830
    1760
    40-¢36
    1915
    1820
    40-¢48
    1800
    1820
    2045
    1970
    44-¢40
    2115
    2020
    44-¢48
    2000
    2020
    2265
    2180
    48-¢42
    2325
    2230
    48-¢48
    2200
    2220
    2475
    2390
    52-¢42
    2550
    2440
    52-¢56
    2400
    2420
    2685
    2600
    56-¢42
    2760
    2650
    56-¢56

    網站地圖