• 手机看片福利永久,手机在线看片,手机福利看片,手机看片午夜福利

    旋轉手机在线看片 1 2 3
    熱門關鍵詞: 手机福利看片係列、 冷卷法蘭係列、 橡膠接頭管係列
    聯係手机看片福利永久查看更多+

    地 址: 河南省鞏義市西村工業區

    聯係人: 龐經理

    手 機: 15617617287

               15038001853

    E_mail: gyltgd@126.com

    網 址: http://www.runshicc.com/

    http://www.gyltgdc.com/

    伸縮接頭係列

    雙法蘭限位伸縮接頭

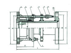
    雙法蘭限位伸縮接頭型號VSSJA-2或B2F型,管道兩邊法蘭的連接方式,安裝在管道上可以和閥門連接,既補償了管道的伸縮量又對閥門的維修提供了方便。 VSSJA-2型雙法蘭限位伸縮接頭是由鬆套伸縮接頭和一個法蘭限位短管組合而成。雙法蘭限位伸縮接頭能防止管道因超量位移導致補償接頭的泄漏和損壞,主要用於在允許位移範圍內吸收軸向位移和承受軸向壓力推力的管道鬆套連接。

    全國24小時銷售熱線:15617617287

    雙法蘭限位伸縮接頭應用範圍
    VSSJA-2型雙法蘭限位伸縮接頭適用於輸送海水、淡水、冷熱水、飲用水、生活汙水、原油、燃油、潤滑油、成品油、空氣、煤氣、溫度不高於250度的蒸汽和顆粒粉狀等介質。
    雙法蘭限位伸縮接頭功能介紹
    雙法蘭限位伸縮接頭型號VSSJA-2或B2F型,管道兩邊法蘭的連接方式,安裝在管道上可以和閥門連接,既補償了管道的伸縮量又對閥門的維修提供了方便。 VSSJA-2型雙法蘭限位伸縮接頭是由鬆套伸縮接頭和一個法蘭限位短管組合而成。雙法蘭限位伸縮接頭能防止管道因超量位移導致補償接頭的泄漏和損壞,主要用於在允許位移範圍內吸收軸向位移和承受軸向壓力推力的管道鬆套連接。

    雙法蘭限位伸縮接頭安裝說明
    VSSJA-2型雙法蘭限位伸縮接頭適用於兩邊均與法蘭連接,安裝時調整產品兩端與法蘭的連接長度,對角依次均勻擰緊壓蓋螺栓,再調整好限位螺母,這樣就能讓管道在伸縮量範圍內可以自由伸縮,鎖定伸縮量,確保管道的安全運行


    。

    VSSJA-2型雙法蘭限位伸縮接頭材料表

    名稱
    數量
    材料
    1
    本體
    1
    QT400-15、Q235A、ZG230-450、20
    2
    密封圈
    1
    NBR
    3
    壓蓋
    1
    QT400-15、Q235A、ZG230-450、20
    4
    限位短管法蘭
    1
    Q235A、20、16Mn
    5
    螺母
    4n
    Q235A、20、1Cr18Ni9Ti
    6
    長螺柱
    n
    Q235A、35、1Cr18Ni9Ti
    7
    螺柱
    n
    Q235A、35、1Cr18Ni9Ti

    VSSJA-2型雙法蘭限位伸縮接頭安裝數據表

    公稱通徑
    管子外徑
    外形尺寸
    伸縮量
    法蘭連接尺寸
    Dw
    L
    L1
    0.6MPa
    1.0MPa
    D
    D1
    n-d。
    D
    D1
    n-d。
    65
    76
    340
    105
    50
    160
    130
    4-¢14
    185
    145
    4-¢18
    80
    89
    190
    150
    4-¢18
    200
    160
    8-¢18
    100
    108
    210
    170
    220
    180
    114
    125
    133
    240
    200
    8-¢18
    250
    210
    140
    150
    159
    265
    225
    285
    240
    8-¢22
    168
    200
    219
    320
    280
    340
    295
    250
    273
    370
    335
    12-¢18
    395
    350
    12-¢22
    300
    325
    350
    130
    65
    440
    395
    12-¢22
    445
    400
    350
    377
    490
    445
    505
    460
    16-¢22
    400
    426
    540
    495
    16-¢22
    565
    515
    16-¢26
    450
    480
    595
    550
    615
    565
    20-¢26
    500
    530
    645
    600
    20-¢22
    670
    620
    600
    630
    755
    705
    20-¢26
    780
    725
    20-¢30
    700
    720
    860
    810
    24-¢26
    895
    840
    24-¢30
    800
    820
    590
    220
    130
    975
    920
    24-¢30
    1015
    950
    24-¢33
    900
    920
    1075
    1020
    1115
    1015
    28-¢33
    1000
    1020
    1175
    1120
    28-¢30
    1230
    1160
    28-¢36
    1200
    1220
    1405
    1340
    32-¢33
    1455
    1380
    32-¢40
    1400
    1420
    1630
    1560
    36-¢36
    1675
    1590
    36-¢42
    1500
    1520
    1730
    1660
    -
    -
    -
    1600
    1620
    1830
    1760
    40-¢36
    1915
    1820
    40-¢48
    1800
    1820
    2045
    1970
    44-¢40
    2115
    2020
    44-¢48
    2000
    2020
    2265
    2180
    48-¢42
    2325
    2230
    48-¢48
    2200
    2220
    2475
    2390
    52-¢42
    2550
    2440
    52-¢56
    2400
    2420
    2685
    2600
    56-¢42
    2760
    2650
    56-¢56


    網站地圖